真言宗光林寺 位牌堂/2021
真言宗光林寺 位牌堂
今治市玉川町の山の中。
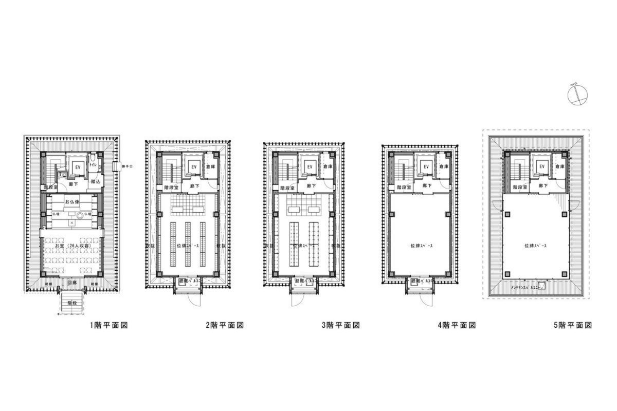
歴史ある寺院で、位牌堂をつくるという現代的な取組。寺院施設一連の再計画第一歩目となる本計画のテーマは、現代の素材を使って「これからの寺院をつくる」ということ。

鉄骨造でつくられる本体に、袴のように約550本の桧の化粧垂木を掛けわたし、そこにランダムにガラスを嵌め込みます。訪れた方々が気持ちを静められる、光の回廊をつくる。光の色は周囲の豊かな自然によって、一年の中で移ろい変化していきます。仏教の考え方である、諸行無常を建築的に表現したものです。

また、袴部分は鉄骨の本体部分を守る役割も担います。時に強風雨もふきあれる本敷地。使用される素材は一般流通しているものを対象としており、技術的に特別な工法を用いることなく、地元の職人にてメンテナンスしていけるよう。長持ちする建物とするために、部材や屋根葺材の取り替え可能な袴部分は重要です。

大切な人を想い、建築を前に手を合わせる。
天に昇る光の粒が、人々の心の拠り所になればと願います。

撮影:小川 重雄
Ihaidō for Kōrin-ji Temple

It is located in northwest Shikoku, in the mountains of Tamagawa-chō, Imabari City.
This project in modernization involved building an ihaidō (hall for housing Buddhist memorial tablets) at a temple that boasts a 1316-year history.
The theme of this project, which is the first step in a series of steps to be taken in the re-planning of the temple, is to “create a temple for the future” using modern materials.

On a steel framework, around 800 cypress rafters are extended diagonally and left exposed, much like a hakama (traditional Japanese skirt-like garment), and 88 pieces of glass are fitted randomly. The number “88” is the same as the number of sacred spots visited on an ohenro pilgrimage made around Shikoku. The space created as a result becomes a corridor of light, a place for calming one’s spirit. The colors of the lights shift and change throughout the year, depending on the rich nature that surrounds the temple grounds. The structure architecturally expresses the spirit of shogyō mujō, a fundamental Buddhist doctrine which teaches that all things are impermanent.

In addition, the hakama portion also serves to protect the main body of the steel structure, as the grounds are at times exposed to powerful winds and rain. We chose widely distributed, readily available materials and used no technically specialized construction methods to ensure that local craftsmen would be able to carry out the necessary maintenance work for many years to come. To create a building that lasts for a long time, components and the hakama portion with replaceable roofing material are very important.

People think of their loved ones as they face the building and bring their hands together in prayer.
It is our hope that the sprinkles of light climbing toward the heavens will serve as a source of comfort for people’s spirits.
  • 施工 : 有限会社 獏工房 /
  • 造園 : 玉川造園 /
  • 住所 : 愛媛県今治市玉川町 /
  • 延床面積 : 396.36㎡ (119.89坪)

  • 構造 : 鉄骨造 5階建て 一部木造 /
  • その他 : 2017年竣工
089-968-2887info@okunotakashi.jpcontact
PAGE TOP
奥野崇建築設計事務所 公式インスタグラム