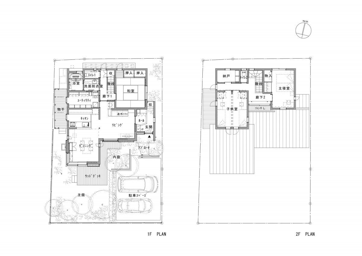
西条の家/2018
西条の家
周辺には田園風景が拡がり、南には石鎚山を望むことができる敷地において、のびやかでありながらも、ほどよい包まれ感を感じる住まいをつくろう。

「見える」と「見えない」の間にあるグラデーションを愉しむ。隠し框でそこに存在しないようなガラス戸、重心をつくり室内空間に落ち着きをもたらす腰桟付きの網戸、透けて見える特殊なこよりを上部にのみ貼り込んだ障子。壁の中に格納されるそれらは、ひとつの開口部でいくつもの見え方、距離感をつくるためのもの。

室内においては、ちょうどよい大きさの空間が斜めにずれながら続いていく。落ち着く、という身体的感覚を拠り所に、それでいて抜け感をつくる。奥へ奥へと続く視線の先は、遠い山並みへ届くように。

家という安心できる場所があって、外と繋げていく。
じんわり滲んでくるような、いいなあ、と思える空間を目指した。

撮影:藤村 泰一
House in Saijō

Set on a lot with views of mountains to the south across surrounding countryside expanses, this one creates a home space with a relaxed, open feel even while offering a nicely balanced sense of enclosure.

Design features offer the enjoyment of gradations ranging from open viewing to closed from sight: a glass door that appears virtually not there… a screen door centering the space, fitted with a low crossrail… shōji screens papered with see-through washi at upper portions only. From the single opening of the in-wall space where they can be stowed all give options for different ways to set off the space.

Spaces of just-right proportions angle inward to comprise the interior, based upon the physical sensation of calm, while the line of sight is pulled on toward the distant rows of mountains.

Here is a home, the space where a family can feel at ease, connecting as well with the outside. Design work aimed to create the sort of space that would seem to gradually exude a sense of comfort.
  • 施工 : 株式会社 宮嶋組 /
  • 造園 : 株式会社ランドスケープ 礒崎敏弘 /
  • 住所 : 愛媛県西条市朔日市 /
  • 延床面積 : 141.20㎡(42.71坪)

  • 構造 : 在来軸組工法 2階建て /
  • 耐震 : 等級3 /
  • 断熱(Ua値): 0.60W/㎡・K /
  • その他 : 長期優良住宅 2018年竣工
089-968-2887info@okunotakashi.jpcontact
PAGE TOP
奥野崇建築設計事務所 公式インスタグラム