氷見のパン工房/2018
氷見のパン工房
「人との関わり合いを大切にしたい。」
クライアントの最初の言葉です。

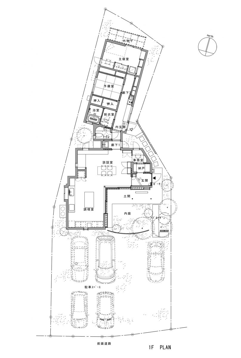
以前から営まれていたパン教室を引き続き、
住まいとあわせて、こぢんまりと整えました。

たくさんを求めず、当たり前の日常を愛する。
人のつくる雰囲気と建築のつくる空気感とが呼応しながら、愉しい時間というものはつくられるのでしょう。

自然体であれる器として、肩肘はらない空間を、と設計に臨みました。


撮影:藤村 泰一
Bakery workshop space in Himi


“I would like to place value on interconnectivity with people.”
These were our client’s first words.

We have made a compact, snug arrangement of the space to provide a combined residence
while maintaining the function it has played as a space for baking lessons.

To forgo the pursuit of overabundance and cherish the commonplace pleasures of the day-to-day...
In the layout here we have sought to design a home space encapsulating your freedom to move at your own rhythm, to live at your own pace.
  • 施工 : 株式会社 もみじ建築 /
  • 造園 : 株式会社ランドスケープ 礒崎敏弘 /
  • 住所 : 西条市氷見地区 /
  • 延床面積 : 79.89㎡ (24.17坪)

  • 構造 : 在来軸組工法 平屋 /
  • 耐震 : 等級3 /
  • 断熱(Ua値): 0.64W/㎡・K /
  • その他 : 2019年竣工
089-968-2887info@okunotakashi.jpcontact
PAGE TOP
奥野崇建築設計事務所 公式インスタグラム