奥野崇建築設計事務所
Takashi Okuno & Associates
ホーム
home
建築
portfolio
奥野崇
profile
家づくりの流れ
flow
掲載情報
publications
雑記
blog
問い合わせ
contact
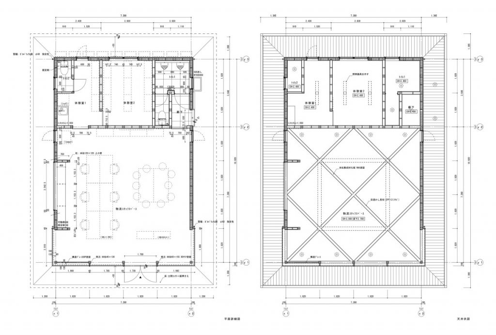
松前の木の事務所
『木でつくる、小さな平屋の事務所』
物流倉庫の管理を行う事務所建築である。
4間×4間(7.28m×7.28m)の通常より大きな無柱空間を、
梁を各辺の中央部を結ぶように架け渡し、支点間距離を短くしている。
それによって、むやみに梁背を大きくすることなく、
無理のない架構計画となっている。
撮影 北村徹
施工 : 愛媛県松前町 /
造園 : 木造軸組工法 /
住所 : 79.49㎡ (24.04坪) /
延床面積 : 株式会社 東洋建設
> back to index
next >
089-968-2887
/
info@okunotakashi.jp
/
contact
form