暖かい終の住処/2018
暖かい終の住処
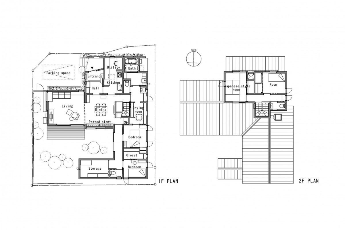
エアコン冷房が苦手で、体感温度が人より低く快適温度が28℃付近のご主人。股関節に不安を抱え、暑さが苦手でエアコン冷房を希望する奥様。
長年連れ添った夫婦の、相反する希望に応えるプラン。

建物の基本的な断熱・気密性能を高め、夏季の日射遮蔽・冬季の日射取得を積極的に行うべく、外付ブラインドや高性能木製サッシ、ハニカムサーモスクリーンなどを活用。また、敷地の卓越風を調査し、風通しの良い開口計画を行なった上で、さらなる通風をと、重力換気を促す風突や、内庭へ自動散水装置による地下水を利用した打ち水を計画している。

室内に落ち着きをもたらす「包まれ感」を大切にしようと、各垂れ壁の寸法には特に気をつけて全体を調律していった。

ダイニングの窓際に置かれた、奥様の趣味である蘭の鉢植えが、いきいきとしたこれからの暮らしを予感させてくれる。

撮影:小川 重雄
A Warm Final Residence

The final residence that offers both comfort and insulation for an elderly couple
The husband dislikes air conditioning, and the wife dislikes the heat and prefers to have AC.
A layout that meets the conflicting wishes of a married couple who have been together for many years.

External aluminum blinds, high-performance sliding wooden window frames, and heat insulating screens are used to enhance the building’s basic capability to maintain insulation and airtightness, and to actively shut out sunlight in the summers and take in sunlight in the winters.

Further, the grounds were surveyed to determine the prevailing wind in order to work out the placement of openings to allow winds to effectively pass through the house. Based on that, a plan was made for a wind chimney that promotes ventilation caused by temperature differences.

To carefully create an enveloping space that offers a sense of safety and groundedness, particular attention was paid to the size of each of the hanging partitions as a way to fine-tune the overall feel.

The potted orchids—the favorite of the missus—placed by the dining room window seem to foretell the vibrant life that is to come.
  • 施工 : 株式会社もみじ建築 /
  • 造園 : 在来軸組工法 2階建て /
  • 住所 : 愛媛県松山市居相 /
  • 延床面積 : 145.90㎡ (44.13坪)

  • 構造 : 在来軸組工法 2階建て /
  • 耐震 : 等級2 /
  • 断熱(Ua値): 0.49W/㎡・K /
  • その他 : C値(相当隙間面積):0.48 ㎠/㎡ 2017年竣工
089-968-2887info@okunotakashi.jpcontact
PAGE TOP
奥野崇建築設計事務所 公式インスタグラム