土間サロンのある家/2021
土間サロンのある家
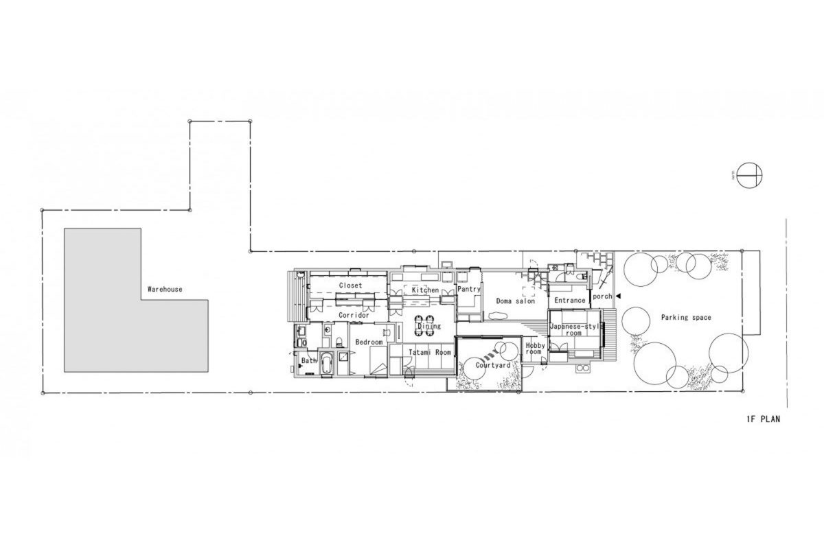
土間サロンは、友人や地域の方の社交場としても捉えられており、小屋組をあらわした開放的な空間で、大小の植栽や水の流れの施された中庭をみることができる。またつくしのはかま取りなど、料理の下ごしらえのスペースとしても使われる。玄関から土間サロン、食品庫、台所と連続する、昔の農家住宅を現代的に整理したような格好。

お互いを大切に想う家族が、それぞれの居場所でつかずはなれず在る。建物の真ん中に計画した中庭は、見え方や時間、光を変化させながら隣接する各室を繋いでいく。また季節の移ろいや、風の通り、水の音により生活に潤いを与えてくれる。

全ての判断において、無理がなく潔くあるようこころがけた。

撮影:小川 重雄
House with a doma Salon*

The house is located in the suburbs of Matsuyama, a northwestern city of Shikoku, a region famous for ohenro, or the Shikoku pilgrimage. The structure is very long and narrow, extending north to south.

It is the home of a gregarious and energetic elderly mother and her daughter who values the practice of cooking meals slowly and intentionally, along with two cautious cats.

As a space in which the mother may fully enjoy her hobby of shigin (performing Japanese or Chinese poems) with her friends, a Japanese style room, complete with a bench, was placed on the side that faces the road. Its ceiling and walls are finished with a Japanese style sakan plastering that uses diatomite, and common reed is used to cover the ochi-tenjō (part of a ceiling that is built lower than the rest, under which the host would sit to show humility). The result is a modern look.

Within the building is a doma salon that can be used for socializing with friends and neighbors. It is an open space with an exposed roof truss. The floor is covered with teppei-seki (pyroxene andesite) stones, the in-between spaces of which are filled with river gravel having exposed texture.

A small, diagonally added room is a space for the daughter to engage in her hobby of Japanese calligraphy. It is a cozy room with a ceiling that is only 1.8 meters high and a view of the yard—an ideal place for quietly immersing oneself to the art of calligraphy.

The family space, on the other hand, is compactly organized on the northern half of the house. Much thought was put into ensuring privacy for each human and cat, while keeping the traffic required for daily activities as short as possible.

Here, mutually caring family members can coexist in their own respective spaces without being too close or too separate. The inner courtyard placed at the center of the building connects the adjourning rooms while going through constant changes of appearance, time, and light. With the seasons’ changes, breezes that come through, and the sound of running water, it brings enrichment to the everyday.

Every aspect of the house was designed to create an effortless and graceful space.

*Doma salon: Doma (literal meaning: “mud room”) is an area of a Japanese home that has a floor that was traditionally covered with packed earth.
  • 施工 : 株式会社 もみじ建築 /
  • 造園 : 創造園 越智 将人 /
  • 住所 : 愛媛県松山市余戸 /
  • 延床面積 : 141.59㎡(42.83坪)

  • 構造 : 在来軸組工法平屋 /
  • 耐震 : 等級3 /
  • その他 : 2016年竣工
089-968-2887info@okunotakashi.jpcontact
PAGE TOP
奥野崇建築設計事務所 公式インスタグラム