ピアノ教室のある家/2018
ピアノ教室のある家
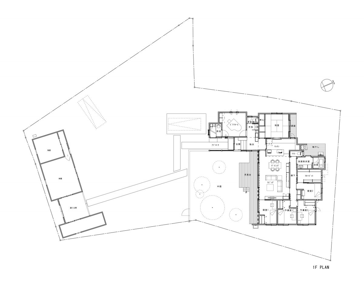
 忙しく勤めてこられた仕事を一段落させ、家族や愛犬とゆっくりと過ごせる平屋の家を求められた。また、奥様が運営するピアノ教室と住居部分をいかにして共存させながら、それぞれの独立性を保つかがテーマとなった。
 
 ゆとりある敷地のなかで、最も環境の良い場所にリビングを設ける。大きく開け放てる開口部によって、内外を一体的に利用できる気持ち良い空間。リビングの北側には遠隔操作できるハイサイドライトによって気持ちの良い風が通り抜ける。
 
 奥様の動線の中心にキッチンを配置し、料理や家事・レッスンと使いやすいように。玄関から取次に続いて、キッチンやピアノ教室、リビングと来客用の和室へと行き来できるコンパクトさは、とても重要な点である。また、教室側には専用の入り口を計画し、生徒の入れ替わりや、送迎の保護者の方の待合としても利用することができる。
 
 自らの仕事を勤め上げた建主さん。込めた工夫や動線整理は、大切な家族や愛犬と暮らすこれからの生活の中に、安心できる余裕をつくるためであったように思う。

撮影:藤村 泰一
Final Place of Residence with Family and Beloved Dog

A client who has retired from a longtime job requested a place of residence where he could relax as he spends the remainder of his days with his family and his beloved dog. An additional key theme for the house was to ensure separate yet coexisting private areas for the wife’s piano classes and the family’s living spaces.
 
The living room is positioned at the best possible spot within the spacious lot. The large glass doors can be opened wide to allow for the interior and exterior to be enjoyed as a pleasant unified space. The dog can run across the large wooden deck and the grass lawn. A window placed high at the north side of the living room can be opened and closed using a controller, and it lets refreshing breezes from the yard flow in.

The kitchen is placed at the center of the traffic flow line so that it is access-friendly for cooking, chores, and piano lessons. An important part of the design is the compact arrangement that makes for smooth mobility from the entrance to the kitchen and piano room, to the living room and Japanese-style guest room. Additionally, a dedicated entranceway was arranged on the side of the piano room through which students can directly enter and exit, enhancing the independence of the respective spaces.

We carefully incorporated ingenuity and considered various traffic patterns in order to create a relaxing space with a sense of security for our client who will spend the coming years in this home with his treasured family and beloved dog.
  • 施工 : 村上工務店 /
  • 造園 : 仙波農園 仙波太郎 /
  • 住所 : 愛媛県松山市衣山 /
  • 延床面積 : 154.15㎡ (46.63坪)

  • 構造 : 在来軸組工法 平屋 /
  • 耐震 : 等級3 /
  • その他 : 2017年竣工
089-968-2887info@okunotakashi.jpcontact
PAGE TOP
奥野崇建築設計事務所 公式インスタグラム