五つ庭の平屋の家/2021
五つ庭の平屋の家
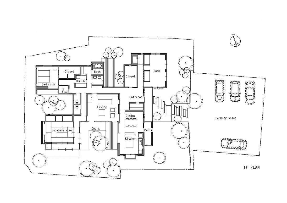
石垣によって周辺から地上げされていた、歴史ある敷地。象徴的な敷地において、プライバシーを確保しながらも、内外が溶け合うような平屋を目指す。

天井にあらわしで見える化粧垂木が印象的で、開放的な開口部と、散りばめられた庭によって、各生活スペースと庭を一体的に考えた。
広い―狭い、明るい―暗いといった空間を対比的に設計することで、使い方や人数に応じた空間を選択することができ、それぞれの空間でいきいきとした生活の場を提供できるよう計画している。

建築設計はもちろん、植栽造園計画、家具の選定まで一貫して関わることで、統一感のある居心地のよい住まいとなったと思う。

撮影:相原 功
  • 施工 : 中村建設 /
  • 造園 : 仙波農園 仙波 太郎 /
  • 住所 : 愛媛県大洲市長浜 /
  • 延床面積 : 224.26㎡(67.84坪)

  • 構造 : 在来軸組工法 平屋 /
  • その他 : 2014年竣工
089-968-2887info@okunotakashi.jpcontact
PAGE TOP
奥野崇建築設計事務所 公式インスタグラム